Sehr geehrte Interessenten,

Wir freuen uns, Ihnen zwölf wunderschöne Reihenhäuser in Martfeld zur Vermietung anbieten zu können.
Jedes der Häuser beeindruckt mit einer großzügigen Wohnfläche von über 150m², verteilt auf fünf Zimmer, die sich perfekt für Familien, Paare oder das Zusammenleben mehrerer Generationen eignen.

NEUBAU von 12 Reihenhäusern

mit je 3 Etagen, eigener Garage und zusätzlichem Stellplatz

Hochwertiges Wohnen in durchdachter Architektur

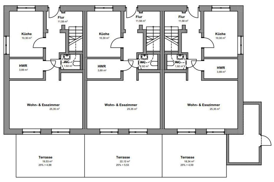
Die vier Wohnblöcke, bestehend aus jeweils drei Reihenhäusern, bestechen durch eine kluge Raumaufteilung und ein stilvolles Design. Die lichtdurchfluteten, großzügig geschnittenen Zimmer bieten Platz für Ihre individuellen Wohnideen. Besonders hervorzuheben ist die Möglichkeit, das Erdgeschoss zu separieren, um so ein Mehrgenerationenhaus zu schaffen. Hier können Familie und Privatsphäre ideal miteinander verbunden werden.

Bezugsfertig im 1. Quartal 2025

Exklusive Reihenhäuser in zentraler Lage von Martfeld – Ihr neues Zuhause mit viel Raum für Ihre Träume

Leben in zentraler Lage von Martfeld

Die Reihenhäuser befinden sich in zentraler Lage von Martfeld und bieten Ihnen eine hervorragende Infrastruktur. Einkaufsmöglichkeiten, Schulen und Freizeitangebote sind in unmittelbarer Nähe.

Lageplan

FAKTEN - AUSSTATTUNG

  • Zwei vollwertige Badezimmer und ein Gäste-WC
  • Einbauküche mit hochwertigen E-Geräte
  • Vinylbodenbelag im gesamten Haus
  • Neubau nach KfW-55-Energiestandard
  • Wärmepumpe
  • Fußbodenheizung
  • Moderne Fenster mit 3-fach-Verglasung
  • elektrische Rollläden
  • Große Garage & zusätzlichem Stellplatz mit Wallboxvorbereitung
  • Gärten und Terrassen in Süd/Westausrichtung

Einladender Wohn- und Essbereich mit hochwertiger Ausstattung

Bereits beim Betreten empfängt Sie eine separate und helle Küche, die mit hochwertigen Markengeräten ausgestattet ist und zum Kochen und Genießen einlädt.
Im Erdgeschoss erwartet Sie ein großzügiger und beeindruckender Wohn- und Essbereich, der dank edlem Vinylboden und bodentiefen Fenstern hell und modern gestaltet ist. Von hier aus gelangen Sie direkt auf die nach Süden ausgerichtete Terrasse, die einen idyllischen Blick in Ihren privaten Garten bietet – der perfekte Ort, um den Tag ausklingen zu lassen.
Ein Hauswirtschaftsraum und ein elegantes Gäste-WC runden das Erdgeschoss ab.

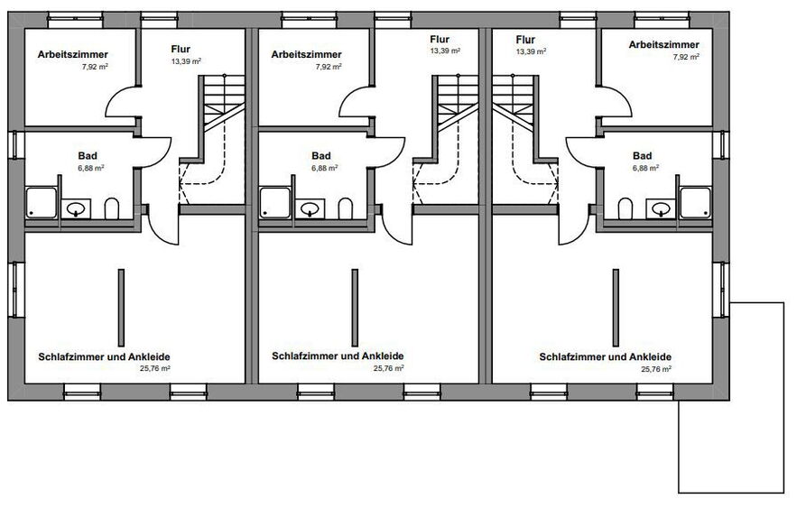
Wohlfühlen auf drei Etagen

Das 1. Obergeschoss bietet mit zwei großzügig geschnittenen Zimmern viel Raum für Erholung und persönliche Entfaltung.
Der größte Raum verfügt über einen praktischen und eleganten Raumtrenner, welchen Sie ganz nach Ihren Bedürfnissen nutzen können - als Ankleide, kreatives Büro oder als gemütlichen Rückzugsort.
Das stilvoll gestaltete Badezimmer mit Dusche, erfüllt höchste Ansprüche an Komfort und Design.

Im 2. Obergeschoss erwarten Sie zwei weitere, geräumige und helle Schlafzimmer mit zwei charmanten Dachgauben, die sich ideal als Elternschlafzimmer oder Gästebereich eignet - hier bleiben keine Wünsche offen.
Ein weiteres Badezimmer mit Dusche sorgt auch hier für höchsten Komfort.

Niedrigenergiehaus KfW 55EE mit Wärmepumpe

Komfort und Energieeffizienz vereint

Jedes Haus ist mit einer modernen Fußbodenheizung ausgestattet, die für wohlige Wärme sorgt. Die integrierte Belüftungsanlage schafft zu jeder Jahreszeit ein angenehmes Raumklima. Zusätzlich zu den beeindruckenden Wohnräumen steht Ihnen auf dem Gelände eine eigene Garage sowie ein weiterer Stellplatz zur Verfügung.

Erdgeschoss

1. OG

2. OG

Ihr neues Zuhause erwartet Sie!

Diese einzigartigen Reihenhäuser bieten Ihnen die ideale Kombination aus stilvollem Wohnen, modernster Ausstattung und einem durchdachten Raumkonzept, das keine Wünsche offenlässt. Zögern Sie nicht und vereinbaren Sie noch heute einen Besichtigungstermin – Ihr neues Zuhause in Martfeld erwartet Sie!

Ihr Ansprechpartner:

Andreas Spuling
info@wohnen-in-Martfeld.de
04297 – 81822022

Interesse? Hinterlassen Sie uns Ihre Kontaktdaten!

Nummer
Unser Ziel ist es, Ihnen perfekt für Ihre Wünsche und Bedürfnisse abgestimmte Informationen zusammenzustellen. Wir benötigen Ihre Telefonnummer, um Sie für evtl. Rückfragen auch telefonisch zu erreichen. Ihre Telefonnummer wird nicht für andere Zwecke genutzt.
Impressum

Barning & Mescheder GbR
Zur Wolfsschlucht 2a
28832 Achim

Mail: info@wohnen-in-martfeld.de
Telefon: 04297 8182-2022

Geschäftsführer:
Thomas Mescheder
Christian Barning